Whether you are looking to create flawless molds, trims etc. in living room or kitchen cabinets and backsplash, our joinery drafting teams are equipped to handle projects of any size and complexity. We go beyond just joinery drawings and drafting to offer value-added insights.
Delivering excellence to joinery manufacturers

Whether you are looking to create flawless molds, trims etc. in living room or kitchen cabinets and backsplash, our joinery drafting teams are equipped to handle projects of any size and complexity. We go beyond just joinery drawings and drafting to offer value-added insights.

Benefits of partnering with TrueCADD joinery experts:
  • Adherence to standards such as AWI, NKBA, BS etc.
  • Onshore and offshore CAD drafting support to meet project milestones and quality.
  • Round the clock dedicated joinery drafting experts
  • Delivery of rendered models in case of complex designs
  • End-to-end design support from conceptualization to manufacturing and installation
  • Scalable technology and infrastructure to meet client needs
Enlisted are the services that our MEP design engineers deliver:
insight_design_mechanical-design-and-drafting

Insight Design Consultant provides technically accurate and high-quality Mechanical Design Services to manufacturers, fabricators and design engineering firms. We have an expert team of Mechanical Engineers, Industrial Engineers and Designers who work meticulously to bring our client’s imagination to life.

We at Insight, understand that Mechanical Design Companies today are on the lookout for optimizing mechanical designs in to contain the rising costs and falling margins and hence, we strive to minimize our work time and achieve our targets as quickly as possible.

An appropriate design is the most substantial part of the machine or component lifecycle and in order to attain this, we use various qualitative and quantitative techniques. We are exceptionally versatile and responsive when it comes to the design process of our clients. Our CAD Design Services can be used to efficiently design machines, tools and fixtures, castings, components, and molds. Additionally, we also assist our clients in planning and managing their Mechanical Design Projects, select suitable materials in terms of cost, durability & safety, and control costs and timelines of the project.

insight_design_mechanical-design-and-drafting
Delivering excellence to joinery manufacturers
High-end residential buildings
High-end residential buildings
Offices and retail shops
Offices and retail shops

Commercial malls and designer shops
Commercial malls and designer shops
Restaurants, bars, and hotels
Restaurants, bars, and hotels

Colleges, universities, and libraries
Colleges, universities, and libraries
Government buildings
Government buildings

Hospitals and laboratories
Hospitals and laboratories

Get the Insight Design Consultant Advantage

  • Casting design for manufacturing
  • Rotor Dynamics / Bearings
  • Analysis & design of auto components
  • Installation of piping & ducting
  • Vibro-Acoustics / Motor Design
  • Machinery Processes / Cutting Tools

Our Works



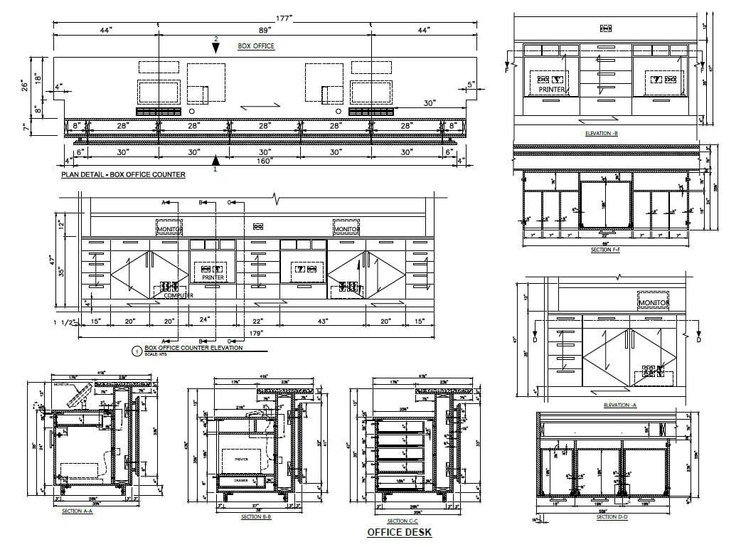
Insight Design's millwork experts study your architectural plans to create millwork drawings for seamless communication between architects, furniture designers, contractors and manufacturers. We create detailed 2D millwork shop drawings with BoMs to reduce ECOs from shop floor. Our strict quality checks of comparing input drawings and output drawings as per design standards such as NKBA, NFC, and AWI ensure error-free custom millwork manufacturing.


Insight Design excels in delivering CAD design and drafting services to support design and manufacturing of metal doors and windows for residential, commercial and industrial buildings. From concept through manufacturing, our sheet metal designers help metal door and window manufacturers to take informed design decisions and remain productive and profitable. Through 2D CAD drawings for sheet metal, glass or wooden doors and window designs and 3D detailed models in SolidWorks, we develop design information to reduce the engineering time, minimize errors and expedite fabrication.


Our skilled draftsmen have years of experience and unmatched expertise in 3D solid modeling services for product design development using SolidWorks from drawings and 2D CAD files.


With our design experts and engineering professionals; we enable manufacturers and product designing firms stay profitable and efficient spatial arrangement with our BIM content and part library using Revit and SolidWorks modeling services for part storage and easy replication. Our design engineers support you from concept drawings to all the way through fabrication and installation including full-scale 3D rendering.

Frequently Asked Questions

What format can the drawings be sent in?

The files can be sent in any graphics format like TIFF, JPEG or PDF. Paper drawings can be couriered to our office. AutoCAD drawings may be emailed to us for 3D modeling and animation.

What drawing standards are followed?

We follow the standards you set. We can also use default standards such as the AIA guidelines.

How do we communicate?

Communication can be done by email, phone, fax, or online chat. We can also set up an FTP transfer for our clients.

In what resolution can the paper drawings be scanned?

The paper drawings can be scanned starting from 150 DPI – 200 DPI, and the most important part is the clarity of the information sent.

Can drawings be sent through fax?

You can fax your drawings to us, though it may lead to a loss of quality and information.

What kind of turnaround time can be expected?

The turnaround time depends on the project and the output required. We can work with short deadlines if needed.

Do you spell-check the drawings?

Yes, we maintain the quality of the drawings. We may, however, need a glossary or interpretation of architectural terminology if the language used is not English.

How do you ensure the security of data?

Regarding projects, we do not disclose any computer and/or paper data generated by us or sent to us.

How do you send heavy data files?

We can transfer a large amount of data through our high-speed internet services. Also, we can burn a CD and post it to you as per your convenience.

Are these services permissible under the law?

Yes. These Net-Enabled services are covered under the WTO agreement and are signed by more than 110 countries.

If you have any queries, please contact us!

Our Work Partners

insight_design_mechanical-design-and-drafting

SOLID WORKS

insight_design_mechanical-design-and-drafting

CREO

insight_design_mechanical-design-and-drafting

MASTER CAM

insight_design_mechanical-design-and-drafting

UNIGRAPHICS

insight_design_mechanical-design-and-drafting

AUTO CAD

insight_design_mechanical-design-and-drafting

ANSYS